公司產品
Products新聞資訊
News- 電磁流量計流量點進行檢測...
- 渦街流量計參數設置
- 渦輪流量計原理分類
- 渦街流量計尺寸的檢定
- 渦輪流量計設計理念
- 電磁流量計安裝位置的選擇...
- 電磁流量計檢測原理
- 渦輪流量計參數單位
- 渦街流量計工作原理
- 電磁流量計松緊程度
聯系我們
Contact us聯系人:龐東萍 張慶生
電 話:022-23284808 23284479
022-23280164 27224317
022-23282022 23282481
傳 真:022-23258505
地 址:天津市河西區桃園村大街1號、4號
電 話:022-23284808 23284479
022-23280164 27224317
022-23282022 23282481
傳 真:022-23258505
地 址:天津市河西區桃園村大街1號、4號
信息詳情
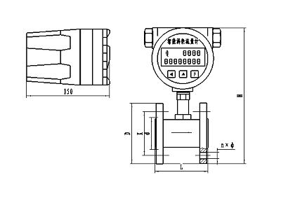
LWY系列智能渦輪流量計
產品說明:

LWY系列智能液體渦輪流量計
產品特點:
·結構簡單,壓力損失小,測量精度高
·采用進口軸承,始動流量低,性能可靠、壽命長
·有較強抗電磁干擾和振動能力、整機功能強、功耗低
·可測量腐蝕性介質,高溫、高壓介質
·可測量微小液體流量至5L/h
·有非線性補償功能的智能液晶顯示器
·儀表系數可在線設置并在LCD屏顯示
·采用EEPROM對累積流量和儀表系數保護可達十年
技術參數:
公稱口徑:DN4~DN200
精度等級:±0.5%、±1%
連接方式:螺紋連接、法蘭連接等
介質溫度:-20℃~120℃ 120℃ ~200℃
公稱壓力:1.6Mpa~6.3 Mpa(>6.3 Mpa)
顯示方式:脈沖輸出、4-20mA標準信號
7位LCD顯示累積和瞬時流量
防爆標志:ExdmⅡBT4
供電電源:5~24VDC、24VDC
3V鋰電池可連續使用六年以上
智能渦輪流量計連接結構尺寸

|
產品型號
|
公稱通徑
mm
|
D
|
K
|
d
|
n×φ
|
L
|
H
|
|
LWY-15
|
15
|
95
|
65
|
46
|
4×14
|
75
|
247
|
|
LWY-20
|
20
|
105
|
75
|
56
|
4×14
|
100
|
255
|
|
LWY-25
|
25
|
115
|
85
|
65
|
4×14
|
100
|
263
|
|
LWY-32
|
32
|
140
|
100
|
76
|
4×18
|
100
|
278
|
|
LWY-40
|
40
|
150
|
110
|
84
|
4×18
|
140
|
287
|
|
LWY-50
|
50
|
165
|
125
|
99
|
4×18
|
150
|
300
|
|
LWY-65
|
65
|
185
|
145
|
118
|
4×18
|
175
|
317
|
|
LWY-80
|
80
|
200
|
160
|
132
|
8×18
|
200
|
332
|
|
LWY-100
|
100
|
220
|
180
|
156
|
8×18
|
220
|
352
|
|
LWY-125
|
125
|
250
|
210
|
184
|
8×18
|
240
|
380
|
|
LWY-150
|
150
|
285
|
240
|
211
|
8×22
|
300
|
410
|
|
LWY-200
|
200
|
340
|
295
|
266
|
12×22
|
360
|
462
|
|
型號
|
公稱通徑(mm)
|
L(mm)
|
H(mm)
|
螺紋連接
|
|
LWY-4
|
4
|
394
|
217
|
G1/2
|
|
LWY-6
|
6
|
430
|
218
|
G1/2
|
|
LWY-10
|
10
|
550
|
220
|
G1/2
|
|
產品型號
|
公稱通徑(mm)
|
L
|
G
|
H
|
|
LWY-15
|
15
|
75
|
G1
|
213
|
|
LWY-20
|
20
|
100
|
G5/4
|
218
|
|
LWY-25
|
25
|
100
|
G5/4
|
221
|
|
LWY-32
|
32
|
100
|
G3/2
|
224
|
|
LWY-40
|
40
|
140
|
G2
|
238
|
- 上一個:液體高壓智能渦輪流量計
- 下一個:LWQ系列氣體渦輪流量計
新聞資訊
-
2019-09-30渦輪流量計原理分類
-
2019-09-17渦輪流量計設計理念
-
2019-08-28渦輪流量計參數單位
-
2019-08-14渦輪流量計故障操作
-
2019-08-09渦輪流量計應用領域
-
2019-07-24渦輪流量計應用場合
-
2019-07-11渦輪流量計測量標準
-
2019-07-02渦輪流量計組成結構
-
2019-06-28渦輪流量計力學原理
-
2019-05-09渦輪流量計單位體積
相關產品








